DIE SUCHMASCHINE FÜR PRIVATE UND PROVISIONSFREIE IMMOBILIEN


Wohnung - Karte anzeigen 13059 Berlin (Bezirk Lichtenberg) Deutschland - 51 m2  

Kaltmiete € 699

von Flatbee vor 4 Stunden gefunden | vor 4 Stunden auf Aktivität geprüft

Warmmiete (Kaltmiete + NK) €  845

Preis-Barometer: +5% teurer als ähnliche Immobilien in gleicher Lage

+5%

premium_badge
Dies ist ein Flatbee Plus+ Inserat
premium_badge

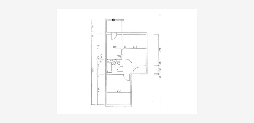
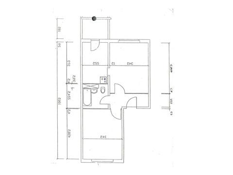
2 Zimmer-Wohnung


Beschreibung

Schöne, ruhige helle zwei Zimmer in einer ruhigen Straße. Die Wohnung hat einen kleinen Flur mit einem Einbauschrank. Das Wohnzimmer ist gut geschnitten und die Küche ist durch das Zimmer zu erreichen. Ein Balkon ist von der Küche aus zu betreten, und bietet Platz für einen Tisch und zwei Stühle. Von dort hat man einen wunderbaren Blick in den grünen, ruhigen Innenhof. Das Schlafzimmer geht zur ruhigen Straße raus, mit Blick auf die Einfamilienhäuser. Das Bad ist funktional, mit Badewanne und Waschmaschinenanschluss. Die Wohnung liegt in der 5 Etage und hat keinen Fahrstuhl.
ANFRAGE NUR ÜBER DIE ANZEIGE
Die Möbel auf den Bildern sind nicht Bestandteil und werden in den nächsten Tagen entfernt. Hinweis zum Energieausweis: Energieausweistyp: Energieverbrauchsausweis, Energiebedarf: 56.00 kWh(m²a), Effizienzklasse: , Energieträger: Fernwärme, Baujahr lt. Ausweis: 1987. Übergabe/Verfügbarkeit ab: nach Vereinbarung.
Informativ: Gesamtmiete ink. Nebenkosten 894,80 €. Dieses Angebot wird bei uns betreut von Herr Uwe Strietzel, Tel. 888888888888.
Lagebeschreibung
Keine Angaben
Sonstiges
Alle INFORMATIONEN ZU DIESEM ANGEBOT, mehr Fotos sowie Pläne/Grundriss bekommen Sie über das Expose auf unserer Internetseite. Die vollständige ANSCHRIFT können Sie ebenfalls über das Kontaktfeld im Expose auf unserer Internetseite anfordern. Hier können Sie auch eine Video-Besichtigung machen. Verwenden Sie dazu diesen Link: 8888888888888888888888888888888 .
Auf unserer Webseite können Sie sich auch über weitere Angebote informieren und Ihre Suchwünsche vormerken, bzw. einen Suchauftrag erstellen.
Wenn Sie Fragen haben, rufen Sie uns einfach an. Wir beraten Sie gerne zu Ihrer Immobiliensuche und versuchen, Ihnen zu helfen.
Übrigens, wenn Sie eine vergleichbare Immobilie selbst zu vermieten oder zu verkaufen haben, sprechen Sie mit uns. Als erfahrene Makler beraten wir Sie gerne und erläutern Ihnen unverbindlich, welchen Mehrwert wir Ihnen bieten können.

PROVISIONSFREI