DIE SUCHMASCHINE FÜR PRIVATE UND PROVISIONSFREIE IMMOBILIEN


Wohnung - Grüne Aue 1, 74858 Aglasterhausen – Baden-Württemberg - 90 m2  

Kaltmiete € 950

von Flatbee vor 1 Tag gefunden | vor 6 Stunden auf Aktivität geprüft

Preis-Barometer: +17% teurer als ähnliche Immobilien in gleicher Lage

+17%

premium_badge
Dies ist ein Flatbee Plus+ Inserat
premium_badge

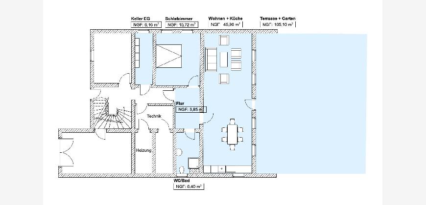
Modernisierte Erdgeschosswohnung mit Terrasse und Garten


Beschreibung

Das Objekt befindet sich in zentraler Lage von Aglasterhausen, mitten im Ort und
dennoch im Grünen. Die Wohnanlage „Grüne Aue“ liegt direkt an der
Bahnhofstraße und ist somit hervorragend angebunden. Der S-Bahnhof
Aglasterhausen ist in wenigen Minuten zu Fuß erreichbar und bietet eine direkte
Verbindung nach Mosbach und Heidelberg.
Im nahegelegenen Oberen Tal finden sich zahlreiche Einkaufsmöglichkeiten,
darunt­er Supermärkte, Bäckereien und Apotheken. Auch Ärzte, Schulen und
Kindergärten befinden sich in unmittelbarer Nähe. Die Umgebung lädt mit ihren
grünen Wiesen und Spazierwegen zu erholsamen Momenten im Freien ein.

Wichtig: Wohnung wird ohne Küche vermietet!

PROVISIONSFREI