Privat & provisionsfrei: Wohnungen aus Portalen, Kleinanzeigen & Social Media kombiniert


Das inserieren direkt auf Flatbee ist immer 100% kostenlos

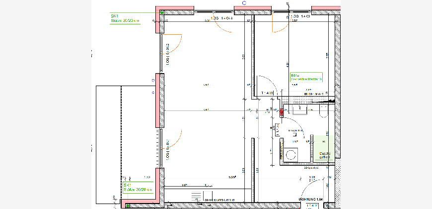
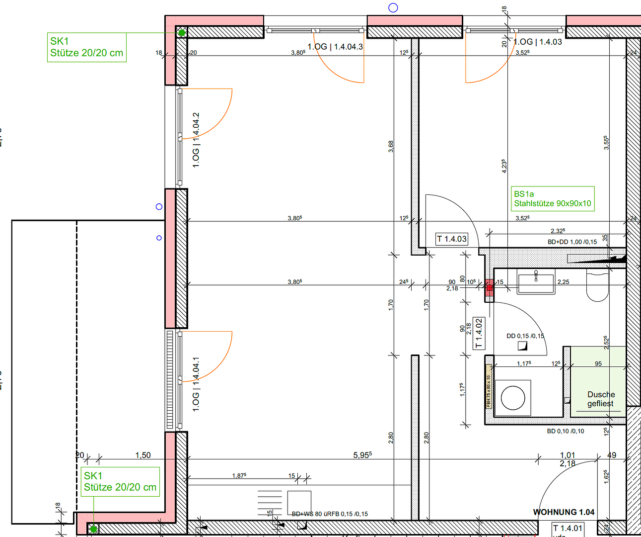
Wohnung - Scheckertstrasse 2, 97299 Zell am Main – Bayern - 67 m2  

Kaltmiete € 970

von Flatbee vor 1 Tag gefunden | vor 2 Stunden auf Aktivität geprüft

Preis-Barometer: +11% teurer als ähnliche Immobilien in gleicher Lage

+11%

premium_badge
Dies ist ein Flatbee Plus+ Inserat
premium_badge

Erstbezug: Premium Neubauwohnung A+ mit Aufzug, EBK, Balkon & Abendsonne in Zell


Beschreibung

Ruhige Wohnlage in Zell am Main
-Ca. 100m zur Sportanlage mit italienischem Restaurant
-Ca. 150m zu wunderschönen Wander- und Radwegen
-Ca. 100m zur Bushaltestelle Stahlbergweg
-Ca. 10 Autominuten in die Würzburger Stadtmitte & HBF
-Ca. 3 Autominuten zum Edeka / Apotheke / Arzt / Bäcker / Bank / Schule / Kindergarten

PROVISIONSFREI