Privat & provisionsfrei: Wohnungen aus Portalen, Kleinanzeigen & Social Media kombiniert


Das inserieren direkt auf Flatbee ist immer 100% kostenlos

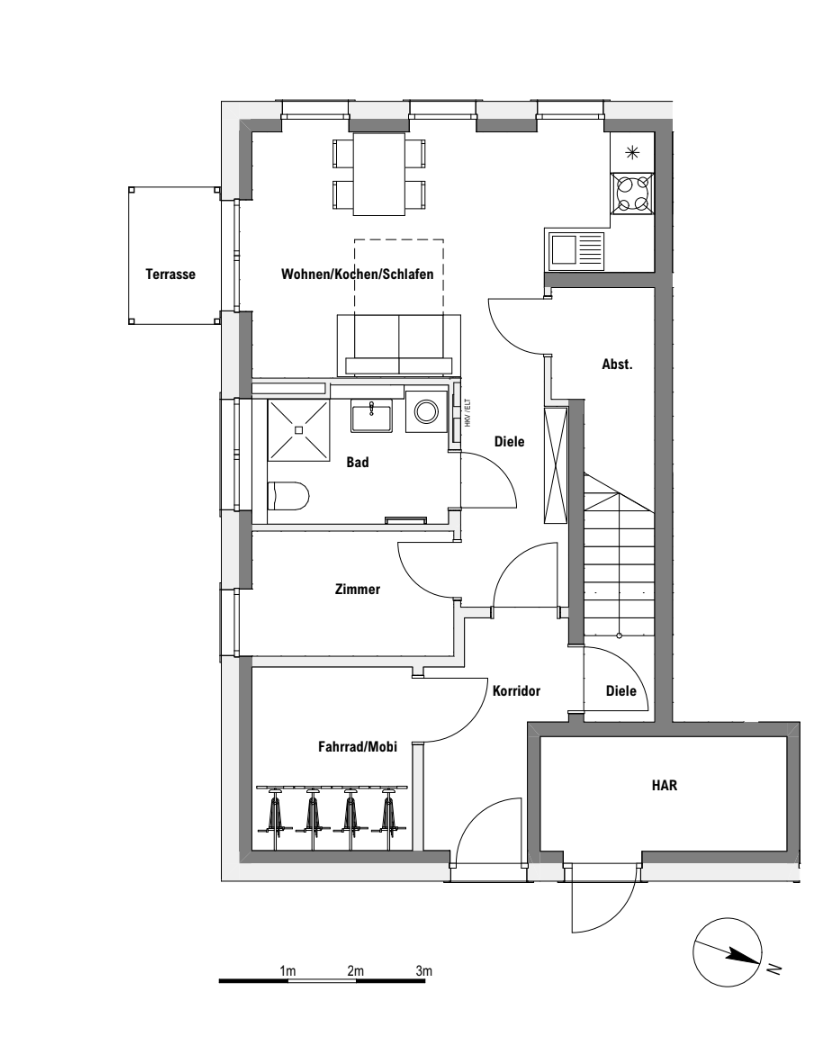
Wohnung - Tempelhofer Str. 8, 15806 Zossen – Brandenburg - 0 m2  

Kaltmiete € 549

von Flatbee vor 1 Tag gefunden | vor 1 Tag auf Aktivität geprüft

Preis-Barometer:

0%

premium_badge
Dies ist ein Flatbee Plus+ Inserat
premium_badge

Stylish new-build apartment with a private garden just outside Berlin - Erdgeschosswohnung - Zossen


Beschreibung

The new-build apartments are located in a quiet and well-established residential area in Zossen. The surroundings are characterised by detached houses, plenty of greenery, and a pleasant, family-friendly neighbourhood combined with excellent infrastructure.

PROVISIONSFREI