Privat & provisionsfrei: Wohnungen aus Portalen, Kleinanzeigen & Social Media kombiniert


Das inserieren direkt auf Flatbee ist immer 100% kostenlos

Haus - 52428 Jülich - 446 m2  

Kaufpreis € 859000

| vor 1 Tag auf Aktivität geprüft

Preis-Barometer: -6% günstiger als ähnliche Immobilien in gleicher Lage

-6%

Attraktives Mehrfamilienhaus in Jülich mit 6 Einheiten, 17 Zimmern, starke Rendite & Ausbaupotenzial


Beschreibung

Zum Verkauf steht ein attraktives Mehrfamilienhaus in Jülich, ideal für Kapitalanleger, die Wert auf stabile Mieteinnahmen und Entwicklungspotenzial legen. Das 1960 erbaute Objekt verfügt über eine Gesamtwohnfläche von ca. 446 m² auf drei Ebenen und beherbergt aktuell sechs voll vermietete Wohneinheiten mit insgesamt 17 Zimmern. Die Jahresnettokaltmiete beträgt ca. 48.022 €, was einer Rendite von rund 5,6 % entspricht.



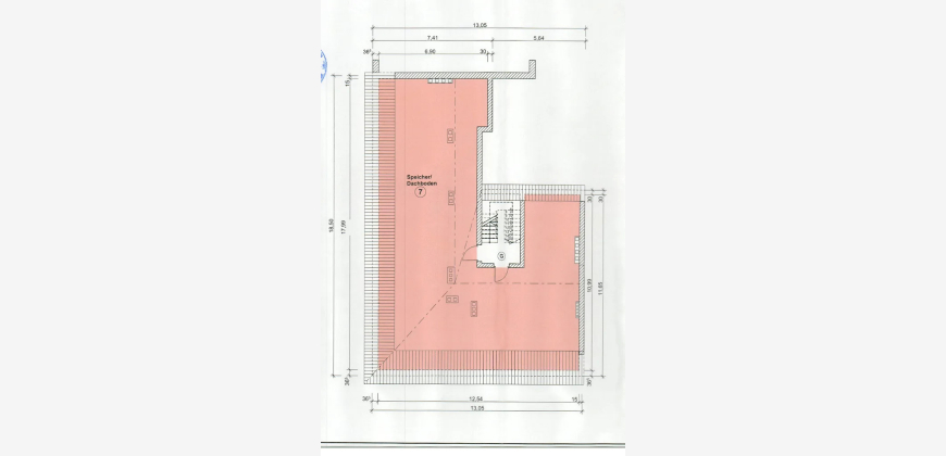
Das Gebäude bietet zahlreiche Vorteile für Investoren: Jede Wohneinheit verfügt über ein eigenes Kellerabteil, neue Etagenheizungen (2023–2024) sorgen für modernen Wohnkomfort, und das Haus ist vollständig unterkellert. Besonders interessant ist das Erweiterungspotenzial im Dachgeschoss, wo die Realisierung von zwei zusätzlichen Wohneinheiten möglich ist – ideal, um die Ertragskraft noch weiter zu steigern.



Die Lage in Jülich überzeugt durch eine hohe Vermietungssicherheit: In direkter Nähe zum renommierten Forschungszentrum Jülich ist eine konstante Nachfrage nach Wohnraum gesichert. Kurze Wege zu Schulen, Einkaufsmöglichkeiten und Ärzten sowie eine hervorragende Anbindung an Köln, Düsseldorf und Aachen runden das attraktive Standortprofil ab.



Für Investoren bietet diese Immobilie eine ideale Kombination aus laufenden Mieteinnahmen, langfristiger Wertsteigerung und zusätzlichem Ausbaupotenzial in einer wirtschaftlich starken Region.

Gesamtwohnfläche: ca. 446 m² auf 3 Ebenen

Grundstücksgröße: ca. 242 m²

Baujahr: 1960

Einheiten: 6 Wohneinheiten, voll vermietet

Mieteinnahmen p.a.: ca. 48.022 €

Rendite: ca. 5,6 %

Erweiterungspotenzial: Dachgeschossausbau möglich (2 weitere Wohneinheiten realisierbar)



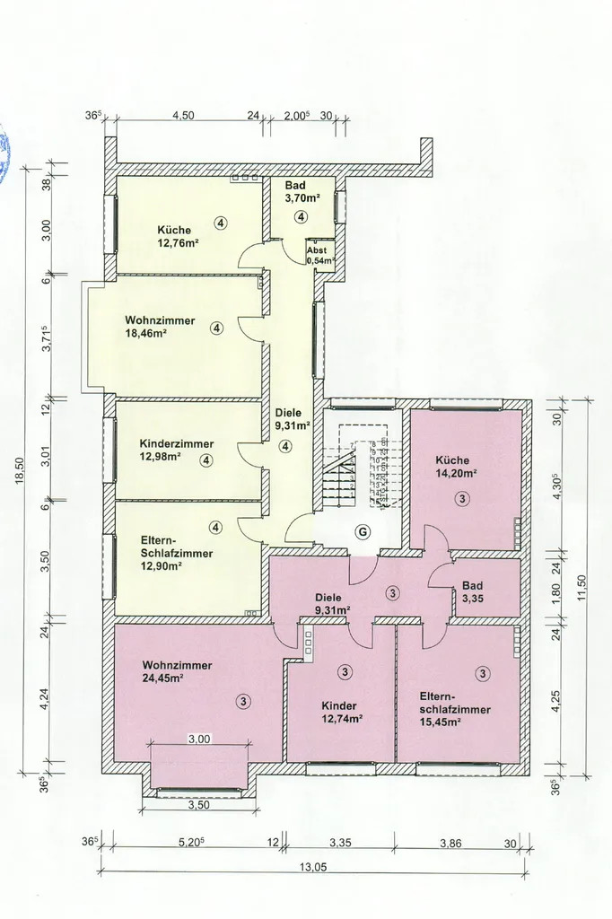
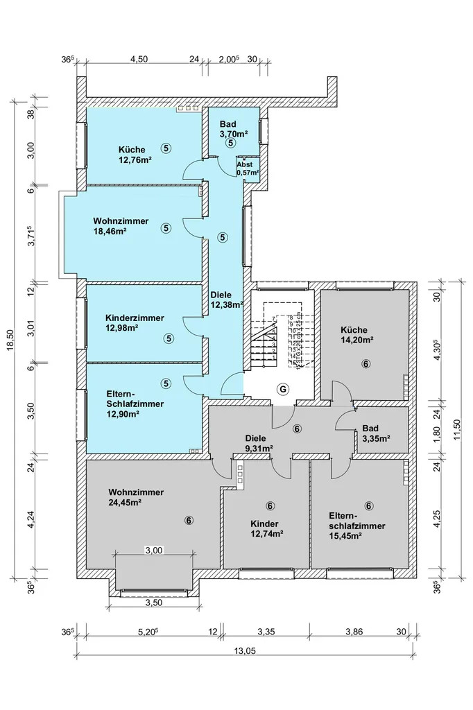
Wohnungsaufteilung

WE 1 – Erdgeschoss links: 86,20 m², 3 Zimmer

WE 2 – Erdgeschoss rechts: 56,05 m², 2 Zimmer

WE 3 – 1. Obergeschoss links: 79,50 m², 3 Zimmer

WE 4 – 1. Obergeschoss rechts: 70,65 m², 3 Zimmer

WE 5 – 2. Obergeschoss links: 73,75 m², 3 Zimmer

WE 6 – 2. Obergeschoss rechts: 79,50 m², 3 Zimmer



Ausstattungsmerkmale

Holzfenster aus dem Baujahr

Neue Etagenheizungen (2023–2024)

Voll unterkellert

Separates Kellerabteil für jede Wohneinheit



Hinweis: Aus Rücksicht auf die Privatsphäre der Mieter wurden im Exposé aktuell nur zwei der insgesamt sechs Wohneinheiten fotografiert.