Privat & provisionsfrei: Wohnungen aus Portalen, Kleinanzeigen & Social Media kombiniert


Das inserieren direkt auf Flatbee ist immer 100% kostenlos

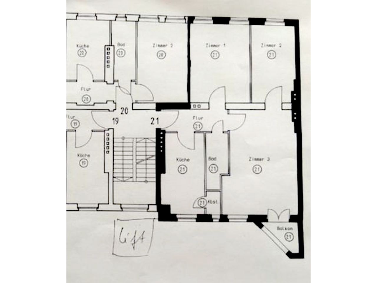
Wohnung - 10717 Berlin (Wilmersdorf) - 70 m2  

Kaufpreis € 450000

von Flatbee vor 1 Tag gefunden | vor 3 Stunden auf Aktivität geprüft

Preis-Barometer: +3% teurer als ähnliche Immobilien in gleicher Lage

+3%

Exklusive 3-Zimmer Wohnung im Güntzel-Kiez - Wohnung - Berlin


Beschreibung

Die angebotene Wohnung befindet sich im begehrten Güntzel-Kiez, einem ruhigen, urbanen und exklusivem Stadtteil in Berlin, Charlottenburg-Wilmersdorf.