Privat & provisionsfrei: Wohnungen aus Portalen, Kleinanzeigen & Social Media kombiniert


Das inserieren direkt auf Flatbee ist immer 100% kostenlos

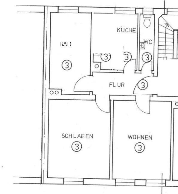
Wohnung - 60594 Frankfurt am Main (Sachsenhausen) – Hessen - 66 m2  

Kaltmiete € 1300

Von Flatbee von einer Woche gefunden | vor 1 Tag auf Aktivität geprüft

Preis-Barometer: -18% günstiger als ähnliche Immobilien in gleicher Lage

-18%

premium_badge
Dies ist ein Flatbee Plus+ Inserat
premium_badge

1A-Lage, Exklusive 2-Zimmer-Altbau-Wohnung am Park mitten in Alt-Sachsenhausen


Beschreibung

Das Objekt befindet sich in mitten in Alt-Sachsenhausen, mit unverbaubarem Blick in einen kleinen Park. Ein Besuch in einer
Apfelweinschenke in weniger Meter ist hier ein Muss, vor allem im Partyviertel Sachsenhausen.

Mindestmietdauer: 18 Monate
Bitte um ersten Kontakt mit einem Anschreiben mit einer kurzen Selbstvorstellung per E-Mail.
Dann werden Mietinteressante direkt vom Eigentümer kontaktiert.

PROVISIONSFREI