Privat & provisionsfrei: Wohnungen aus Portalen, Kleinanzeigen & Social Media kombiniert


Das inserieren direkt auf Flatbee ist immer 100% kostenlos

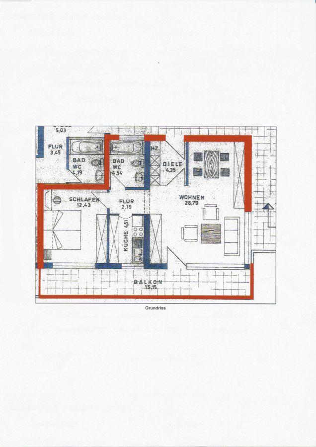
Wohnung - 2 Zimmer in 79618 Rheinfelden Baden-Württemberg mieten - 60 m2  

Kaltmiete € 750

von Flatbee vor 1 Tag gefunden | vor 5 Stunden auf Aktivität geprüft

Warmmiete (Kaltmiete + NK) €  830

Preis-Barometer: -4% günstiger als ähnliche Immobilien in gleicher Lage

-4%

premium_badge
Dies ist ein Flatbee Plus+ Inserat
premium_badge

gemütliche geräumige 2-Zimmer Wohnung in Rheinfelden mit XL Balkon


Beschreibung



Anzeigeart: Miete    
Anzeigentyp: Wohnungen   
Kategorie: - keine Angabe -






Objektbeschreibung:

Wir vermieten zum 01.04.2026 eine gut geschnittene Wohnung in Rheinfelden-Beuggen mit nagelneuer Küche. Die Wohnung befindet sich im ersten Stock eines Terrassenhauses. Sie haben nur einen Nachbar neben sich und teilen sich sozusagen den Hausflur zu zweit. Direkt unter der Wohnung befinden sich lediglich Garagen.

Sie betreten die Wohnung über einen Flur/Windfang mit genügend Platz für eine Garderobe, Schuhe etc.. Durch eine Tür betreten Sie das geräumige und helle Eckwohnzimmer mit einer zusätzlichen Nische für einen Esstisch. Geradeaus geht es auf den Balkon, der sage und schreibe ca. 18m2 gross ist und eine Länge von ca. 8 Metern! mit Blick in die Schweiz und zwischen den Häusern durch sogar zum Schloss Beuggen!

Zurück im Wohnzimmer führt ein Flur geradeaus in das geräumige helle Schlafzimmer, nach links geht es in die Küche mit gerade neu eingebauter Küchenzeile und rechts geht es ins Badezimmer mit Badewanne und Waschmaschinenanschluss.

Die Wohnung besitzt noch einen grossen Keller im Hausflur auf gleicher Ebene genau gegenüber der Eingangstür. Also genügend Platz zum verstauen Ihrer Sachen.

PROVISIONSFREI