Privat & provisionsfrei: Wohnungen aus Portalen, Kleinanzeigen & Social Media kombiniert


Das inserieren direkt auf Flatbee ist immer 100% kostenlos

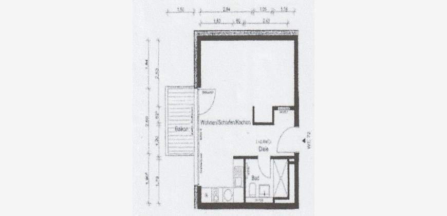
Wohnung - Bossestr. 7, 10245 Berlin (Friedrichshain) - 0 m2  

Kaltmiete € 916

von Flatbee vor 1 Tag gefunden | vor 5 Stunden auf Aktivität geprüft

Preis-Barometer:

0%

premium_badge
Dies ist ein Flatbee Plus+ Inserat
premium_badge

Ostkreuz: renovierte Wohnung in begehrter Lage - Wohnung - Berlin


Beschreibung

- Einkaufsmöglichkeiten und Gastronomie in direktem Umfeld
- nahe Rummelsburger Bucht und Molecule Man
- nächste BVG-Station: S Ostkreuz, viele Bushaltestellen

PROVISIONSFREI