Privat & provisionsfrei: Wohnungen aus Portalen, Kleinanzeigen & Social Media kombiniert


Das inserieren direkt auf Flatbee ist immer 100% kostenlos

Haus - 89081 Baden-Württemberg - Ulm - 260 m2  

Kaufpreis € 567290

| vor 222 Tagen auf Aktivität geprüft

Preis-Barometer: -42% günstiger als ähnliche Immobilien in gleicher Lage

-42%

Packen wir es gemeinsam an


Beschreibung




Objektbeschreibung


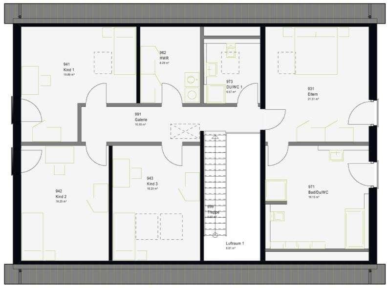
Das FamilyStyle 26.01 S bietet auf einer Nettogrundfläche von 264 m² viel Raum für unterschiedlichste Wohnideen - vom Mehrgenerationenwohnen bis zur vermieteten Einliegerwohnung als Finanzierungshilfe. Möglich macht dies die Aufteilung des Hauses in eine komplette, separate Wohnung im Erdgeschoss - und das eineinhalbgeschossige Wohnen der Bauherrenfamilie, das das Erdgeschoss ausschließlich dem Lebensmittelpunkt im offen angelegten Wohn-, Ess- und Küchenbereich vorbehält. Im Obergeschoss gestatten 127 m² großzügiges Wohnen in drei Kinderzimmern samt eigenem Kinderbad sowie im Elternzimmer mit direkt angegliederter Wellness-Oase.


Ausstattung


Gerne erstelle ich Ihnen ein detailliertes und individuelles Angebot und berücksichtige dabei exakt Ihre persönlichen Wünsche! Dabei achte ich auf eine faire und realistische Kalkulation und eine umfassende Beratung. Ich nehme mir gerne Zeit für Sie!


Folgendes ist in diesem Angebot bereits enthalten:



  • massa Bodenplatte (Wohn- oder Nutzkeller optional gegen Aufpreis möglich)

  • massa Freiraum = Wohnraumhöhe 2,75 m serienmäßig

  • Rollläden für alle Fenster ohne Aufpreis + moderne Haustüre zur Auswahl

  • mineralischer Struktur-Außenputz weiß mit Endputz / zwei- oder mehrfarbig optional

  • Aluminium Außenfensterbänke

  • Pfettendach

  • Dacheindeckung + Dachrinne und Fallrohre aus Zink

  • inklusive Architektenleistungen (Genehmigungsplanung und Bauantrag)

  • Luft-Wasser-Wärmepumpe (deutscher Markenhersteller) inkl. Fußbodenheizung

  • PV- Anlage inkl. Batteriespeicher

  • Kontrollierte Be- und Entlüftungsanlage für perfektes Wohlfühlklima inkl. Wärmerückgewinnung

  • Elektropaket Ausbauhaus inkl. Installation (deutscher Markenhersteller)

  • Materiallieferung Dämmung und Beplankung

  • Rohinstallation Sanitär für alle Bäder und für die Küche


Preis versteht sich zuzüglich Baunebenkosten und Restausbau.


Die Abbildungen sind eventuell mit aufpreispflichtigen Sonderausstattungen versehen.


Weitere Angaben


Objektzustand: Erstbezug


Qualität der Ausstattung: Gehoben


Grundstücksfläche: ca. 747 m²


Nutzfläche: ca. 10 m²


Lagebeschreibung


Das erschlossene Bauland befindet sich in einem bestehenden Wohngebiet und bietet nicht nur Platz für Ihr individuell planbares Familiendomizil.


Bitte haben Sie Verständnis dafür, dass wir keine direkten Gespräche über Grundstücke führen. Wir bieten stattdessen einen umfassenden und kostenfreien Grundstücksservice für alle Hausinteressenten an. Wir möchten betonen, dass wir keine Grundstücksmakler sind, sondern vielmehr daran interessiert sind, Ihnen bei der Suche nach einem geeigneten Grundstück zu helfen.


Unser Grundstücksservice ist darauf ausgerichtet, Ihnen bestmöglich bei Ihrer Suche zu unterstützen. Wir halten ständig aktuelle Grundstücksangebote bereit, die wir je nach Ihren individuellen Wünschen und Ihrem Budget weiterleiten können. Dies ermöglicht es Ihnen, aus einer Auswahl von Grundstücken dasjenige auszuwählen, das am besten zu Ihren Vorstellungen passt.


Sonstiges


Lebe jetzt - und genieße schnellstmöglich die vielen Vorteile der eigenen vier Wände! Für eine erste Orientierung bieten wir dir unseren kostenlosen Finanzierungs-Quickcheck und eine persönliche Beratung an. Im Anschluss unterstützen wir dein Bauvorhaben gerne mit attraktiven Sonderkonditionen unserer Finanzierungsexperten. Sprich uns einfach an - und dann gestalten wir gemeinsam die beste Finanzierung für dein Haus!


Anbieter-Objekt-ID: 2025011630