Privat & provisionsfrei: Wohnungen aus Portalen, Kleinanzeigen & Social Media kombiniert


Das inserieren direkt auf Flatbee ist immer 100% kostenlos

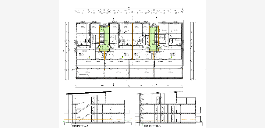
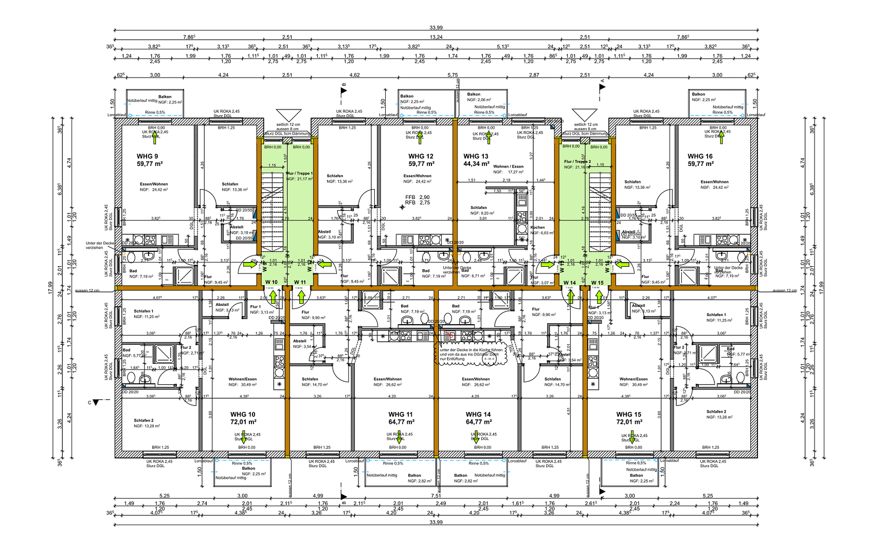
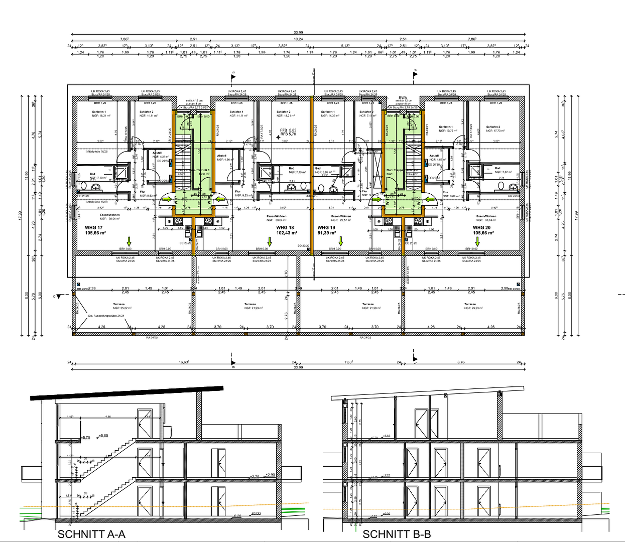
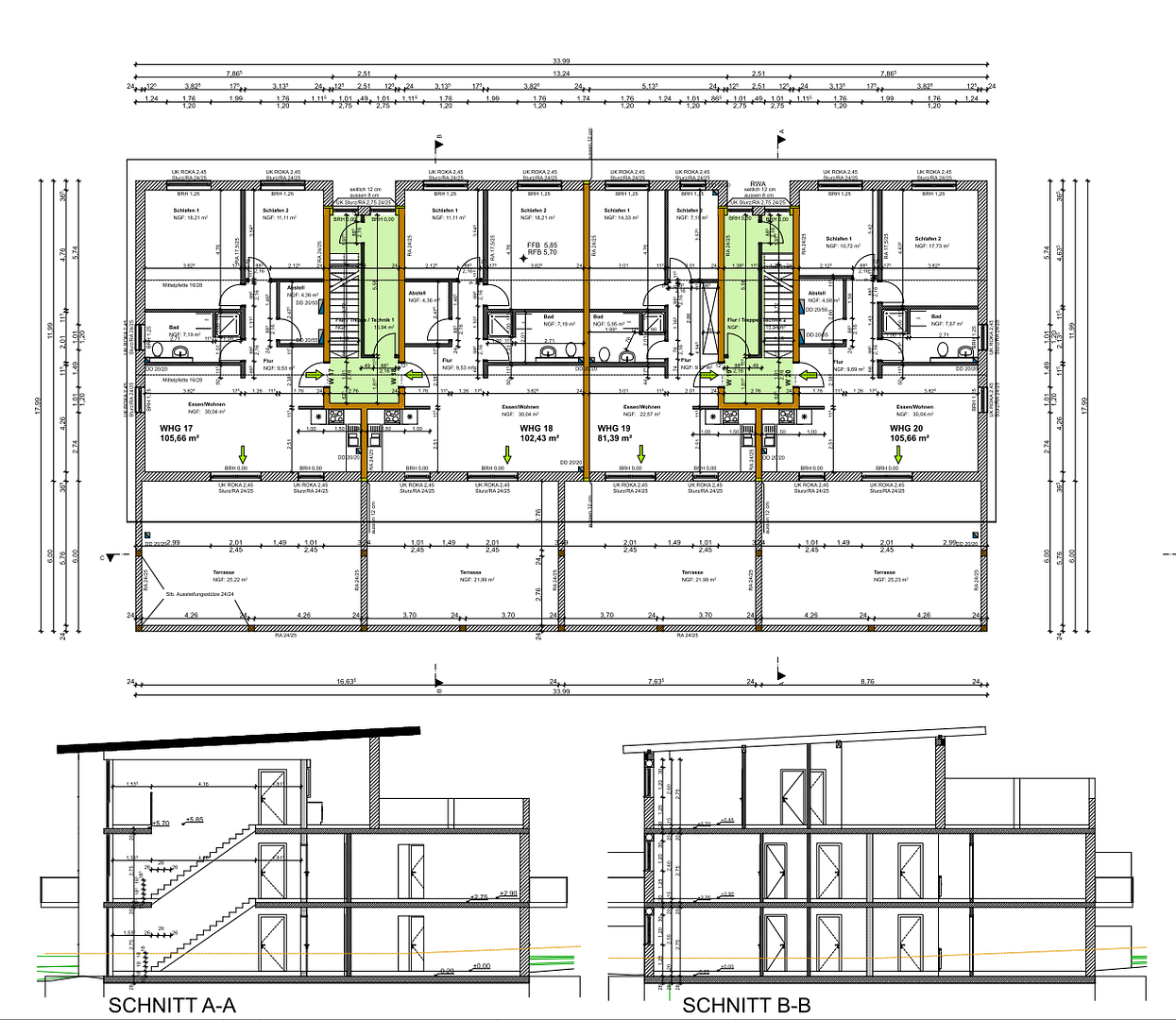
Wohnung - Am Guldenbach 60a 60b, 55494 Rheinböllen – Rheinland-Pfalz - 65 m2  

Kaltmiete € 740

| vor 2 Stunden auf Aktivität geprüft

Preis-Barometer: +26% teurer als ähnliche Immobilien in gleicher Lage

+26%

premium_badge
Dies ist ein Flatbee Plus+ Inserat
premium_badge

🏡 Mietwohnungen in Rheinböllen – Bezug ab Dezember 2025


Beschreibung

💡 Ausstattung


Neubau (Baujahr 2025) – Erstbezug


Helle Räume mit großen Fensterflächen


Fußbodenheiz­ung in allen Räumen


Hochwertiger Vinylboden


Bodentiefe Duschen (Marke Villeroy & Boch)


Elektrische Rollläden


Dreifach verglaste Fenster für besten Wärme- & Schallschutz


Terrasse oder Balkon je nach Wohnung


Separater Abstellraum


SAT-Anlage inklusive


Außenstellplatz auf Wunsch verfügbar (30 €/Monat)

🌍 Lagebeschreibung


Die Wohnungen befinden sich in Rheinböllen 888888), im Herzen des Hunsrücks, in ruhiger und dennoch sehr zentraler Lage.


Zentrale Infrastruktur: Metzger, Bäcker, Ärzte, Apotheken, Supermärkte und Restaurants sind fußläufig in wenigen Minuten erreichbar.


Verkehrsanbindu­ng: Die Autobahn A61 liegt nur ca. 3 Fahrminuten entfernt, sodass Sie schnell die Städte Mainz, Bingen, Koblenz oder auch das Rhein-Main-Gebiet erreichen.


Öffentlicher Nahverkehr: Gute Busanbindungen Richtung Simmern, Bingen und Bad Kreuznach.


Natur & Freizeit: Rheinböllen liegt am Eingang zum Soonwald, ideal für Spaziergänge, Radfahren und Naturerlebnisse. Zudem bietet der nahegelegene Tierpark Rheinböllen ein attraktives Freizeitangebot.


Familienfr­eundlich: Schulen, Kindergärten, Sportstätten und ein Schwimmbad befinden sich direkt vor Ort.

📞 Kontakt

PROVISIONSFREI