Privat & provisionsfrei: Wohnungen aus Portalen, Kleinanzeigen & Social Media kombiniert


Das inserieren direkt auf Flatbee ist immer 100% kostenlos

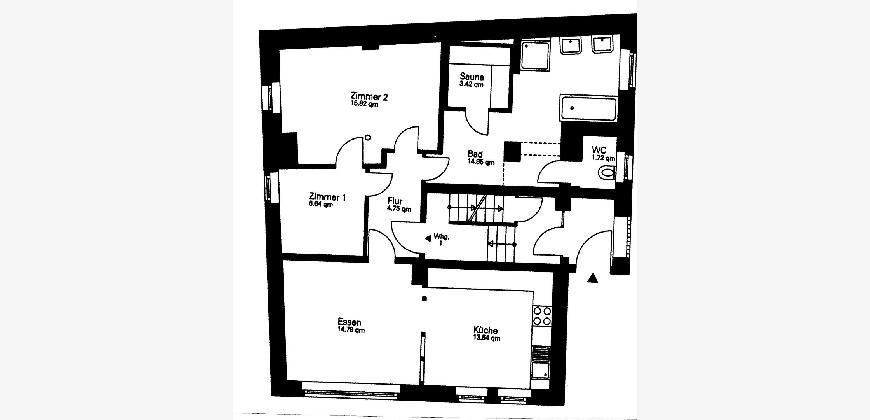
Wohnung - Scheidertalstraße 20, 65232 Taunusstein (Hahn) – Hessen - 75 m2  

Kaltmiete € 695

von Flatbee vor 3 Tagen gefunden | vor 1 Tag auf Aktivität geprüft

Preis-Barometer: -16% günstiger als ähnliche Immobilien in gleicher Lage

-16%

premium_badge
Dies ist ein Flatbee Plus+ Inserat
premium_badge

3 Zimmer Wohnung zur Vermietung befristet für 3 Jahre!


Beschreibung

Die Wohnung wird unmöbliert und in einem normalen, gebrauchten Zustand angeboten. Sie verfügt über eine separate Küche, ein Badezimmer mit Badewanne sowie ein zusätzliches Gäste-WC. Die Bodenbeläge und Wandoberflächen entsprechen einem klassischen Wohnstandard. Die Beheizung erfolgt zentral. Die klare Grundrissstruktur ermöglicht individuelle Gestaltungsmöglichkeiten und eine flexible Nutzung der Räume.

Die Wohnung liegt in ruhiger und gewachsener Wohnlage von Taunusstein, einem beliebten Wohnstandort im Rhein-Main-Gebiet. Einkaufsmöglichkeiten des täglichen Bedarfs, Schulen, Kindergärten sowie ärztliche Versorgung sind in der näheren Umgebung vorhanden. Die Anbindung an den öffentlichen Nahverkehr ist gut, ebenso die Erreichbarkeit der umliegenden Städte wie Wiesbaden und Mainz über die Bundesstraßen. Die naturnahe Umgebung des Taunus bietet zudem einen hohen Freizeit- und Erholungswert mit zahlreichen Spazier- und Wanderwegen.

Die Vermietung erfolgt befristet für 3 Jahre

PROVISIONSFREI