DIE SUCHMASCHINE FÜR PRIVATE UND PROVISIONSFREIE IMMOBILIEN


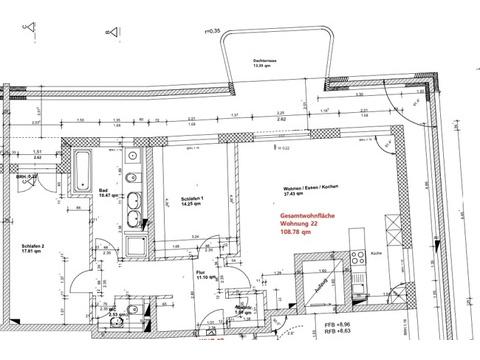
Wohnung - Karte anzeigen 79189 Bad Krozingen (Biengen) Deutschland - 108 m2  

Kaltmiete € 1690

von Flatbee vor 1 Tag gefunden | vor 2 Stunden auf Aktivität geprüft

Warmmiete (Kaltmiete + NK) €  1990

Preis-Barometer: +12% teurer als ähnliche Immobilien in gleicher Lage

+12%

premium_badge
Dies ist ein Flatbee Plus+ Inserat
premium_badge

Energieeffiziente Penthouse Wohnung - Erstbezug


Beschreibung

Oben ist es einfach am schönsten.
Nur ein paar Vögel zwitschern, ein Rauschen der Blätter in den Bäumen und ein leichtes plätschern des „Neumagen“ der direkt hinter dem Grundstück verläuft, sonst ist es ruhig, wenn Sie am gemütlich auf der großzügigen Dachterrasse sitzen und Ihren Kaffe genießen.

Die geschmackvoll ausgestattete Wohnung mit offener Wohnküche lässt keine Wünsche offen. Die großen Fensterfronten bieten einen atemberaubenden Blick ins Grüne, zugleich wirken die Räume sehr luftig und hell. Hochwertige Fliesen im Flur und geschmackvoller Parkett im Wohnbereich mit einem edlem Charme laden zum Wohlfühlen ein. Das Badezimmer ist mit einer Badewanne und einer bodenebenen Dusche ausgestattet. Waschmaschine und Trockner finden im Bad ihren Platz.
Ausstattung
- Fussbodenheizung
- Fliesen in Holzoptik
- Klimaanlage
- Bad mit Wanne und Dusche
- Gäste WC
- Abstellkammer
- elektrischen Rollladen
- Warmwasserheizung mittels Wärmepumpe
- KFW 55 Standart

Einbauküche kann vom Vormieter übernommen werden.
Lagebeschreibung
Bad Krozingen ist eine Stadt und ein Kurort im Landkreis Breisgau-Hochschwarzwald in Baden-Württemberg.
Es liegt etwa 15 km südlich von Freiburg im Breisgau und 45 km von Basel entfernt. Einkaufsmöglichkeiten des täglichen Bedarfs sind in unmittelbarer Nähe vorhanden. Und ein Wochenmarkt lädt zum Einkaufen von regionalen Lebensmitteln ein. Bad Krozingen verfügt mit Bus und Bahn (Bahnhof 500 m) über eine sehr gute Verkehrsanbindung. Auch die Autobahn ist in nur wenigen Minuten erreichbar.
Sonstiges
Senden Sie uns bitte eine Mail an: 8888888888888888

Ansprechpartner: Andreas Eckert
Sie erreichen uns telefonisch Montag - Freitag von 10-19 Uhr.

PROVISIONSFREI