Privat & provisionsfrei: Wohnungen aus Portalen, Kleinanzeigen & Social Media kombiniert


Das inserieren direkt auf Flatbee ist immer 100% kostenlos

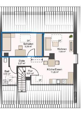
WG-Zimmer - Kilihofstr. 2, 81825 München (Trudering) – Bayern - 40 m2  

Kaltmiete € 810

von Flatbee vor 2 Tagen gefunden | vor 3 Stunden auf Aktivität geprüft

Preis-Barometer: +7% teurer als ähnliche Immobilien in gleicher Lage

+7%

premium_badge
Dies ist ein Flatbee Plus+ Inserat
premium_badge

WG-Zimmer in 2er WG, Dachgeschoss, modern - Dachgeschosswohnung - München


Beschreibung

Die Wohnung befindet sich fussläufig 5 Minuten vom Ortskern Trudering entfernt mit all den Annehmlichkeiten die man sich wünscht. Direkt in der näheren Umgebung erstreckt sich der idyllische Truderinger Wald. Die Wohnung befindet sich im beliebten Stadtteil Trudering, südöstlich der Innenstadt, nahe der Verbindungsstraße zum Stadtteil Riem. Der Stadtteil umfasst den östlichen Bereich Münchens. Im Westen grenzt er an Berg am Laim sowie Bogenhausen, im Süden an Ramersdorf-Perlach, im Norden an Johanneskirchen und im Osten an mehrere Gemeinden des Landkreises München. Alle Einkaufsmöglichkeiten für den täglichen Bedarf, wie Banken, Ärzte und Apotheken sind fußläufig in wenigen Minuten erreichbar. Kindergärten, Grundschulen, Sport und viele Freizeitmöglichkeiten sowie diverse Grünanlagen sind in der näheren Umgebung. U- sowie S-Bahn erreicht man in 15 Gehminuten. Die Fahrzeit zur Münchner Innenstadt beträgt ca. 20 Minuten mit der U-Bahn.

PROVISIONSFREI