Privat & provisionsfrei: Wohnungen aus Portalen, Kleinanzeigen & Social Media kombiniert


Das inserieren direkt auf Flatbee ist immer 100% kostenlos

Wohnung - Karte anzeigen 59174 Kamen Deutschland - 98 m2  

Kaufpreis € 159000

| vor 7 Stunden auf Aktivität geprüft

Preis-Barometer: -25% günstiger als ähnliche Immobilien in gleicher Lage

-25%

Eigentumswohnung in ruhiger Lage. Ihr neues Zuhause oder eine solide Kapitalanlage!


Beschreibung

Objektbeschreibung

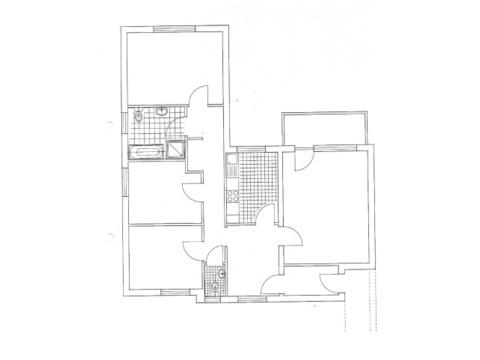
Zum Verkauf steht eine großzügige 4-Zimmer-Eigentumswohnung mit ca. 98 m² Wohnfläche im 2. Obergeschoss (Haus 2) eines sehr gepflegten Mehrfamilienhauses in Kamen-Methler Mitte.

Das im Jahr 1978 erbaute Gebäude befindet sich in einer ruhigen und beliebten Wohnlage und überzeugt durch seine gepflegte Anlage, den vorhandenen Fahrstuhl sowie eine separate Garage.

Die Wohnung eignet sich ideal als Kapitalanlage (Renditeobjekt), da sie aktuell vermietet ist und eine solide Mietrendite bietet.

Ausstattung und Aufteilung

Die helle und gut geschnittene Wohnung verfügt über eine durchdachte Raumaufteilung:

* Wohnzimmer: 21,6 m², Essdiele: 8,3 m², Elternschlafzimmer: 15,8 m², Kinderzimmer 1: 9,9 m² Kinderzimmer 2: 10,3 m², Küche: 8,3 m², Flur: 8,5 m², Windfang: 3,2 m², Bad mit Dusche und Wanne: 6,8 m², Gäste-WC: 1,5 m² ,Abstellraum: 1,1 m². Balkon: 2,7 m²

Zusätzlich stehen ein Kellerraum sowie eine separate Fertiggarage die zurzeit Vermietet ist zur Verfügung.

Die Wohnung wird über Strom (Fußboden- und Nachtspeicherheizung) beheizt.

Ausstattungsmerkmale

Sehr gepflegte Wohnanlage mit Fahrstuhl

Balkon mit einem tollen Ausblick

Eigene Garage inklusive

Kellerraum vorhanden

Heizung: Strom (Fußboden + Nachtspeicher)

Gute Raumaufteilung mit viel Tageslicht

Ruhige, zentrale Lage in Methler

Lagebeschreibung

Die Immobilie befindet sich in zentraler und dennoch ruhiger Lage von Kamen-Methler Mitte.

Einkaufsmöglichkeiten, Schulen, Kindergärten, Ärzte sowie öffentliche Verkehrsmittel sind fußläufig erreichbar.

Durch die Nähe zu den Autobahnen A1 und A2 ist eine hervorragende Verkehrsanbindung in die umliegenden Städte (z. B. Dortmund, Unna, Hamm) gewährleistet.

Sonstiges

Die Wohnung ist derzeit vermietet und eignet sich daher ideal als Renditeobjekt mit langfristigem Wertsteigerungspotenzial.

Ein Energieausweis liegt vor bzw. befindet sich in Vorbereitung.

Fazit

Diese gepflegte 4-Zimmer-Wohnung in bevorzugter Lage von Kamen-Methler bietet Kapitalanlegern eine attraktive Gelegenheit, in eine solide Immobilie mit nachhaltiger Vermietbarkeit zu investieren.
Lagebeschreibung
Das Mittelzentrum Kamen mit fast 50.000 Einwohnern liegt am Rande des östlichen Ruhrgebietes, zentral im Kreis Unna zwischen dem Oberzentrum Dortmund und der kreisfreien Stadt Hamm.

Der Stadtteil Methler ist ein sehr beliebter Wohnbereich insbesondere für Einfamilienhäuser. In Methler finden Sie von Ärzten über Einkaufsgelegenheiten alles für das tägliche Leben. Methler bietet eine eigene Eisenbahnhaltestelle sowie die nahe gelegene Autobahnauffahrt der A2. In direkter Nähe liegen zunächst das Zentrum von Kamen sowie die Städte Unna und Dortmund.
Sonstiges
Alle Angaben sind ohne Gewähr und basieren auf Informationen, die uns von unserem Auftraggeber oder Dritten übermittelt wurden.Für Vollständigkeit, Richtigkeit und Aktualität dieser Angaben kann keine Gewähr übernommen werden. Eine Weitergabe dieses Exposees an Dritte löst ebenfalls Courtage- bzw. Schadensersatzansprüche aus. Im Übrigen gelten die allgemeinen Geschäftsbedingungen, für die Rechtsbeziehung zwischen Ihnen und der Maklerin, der LS Immobilien GmbH als Tochtergesellschaft. Die AGB sind jederzeit einsehbar unter https://www.kemna-immobilien.de/agb. Irrtum und Zwischenverkauf vorbehalten.