Privat & provisionsfrei: Wohnungen aus Portalen, Kleinanzeigen & Social Media kombiniert


Das inserieren direkt auf Flatbee ist immer 100% kostenlos

Wohnung - Karte anzeigen 71297 Mönsheim Deutschland - 70 m2  

Kaltmiete € 800

| vor 4 Stunden auf Aktivität geprüft

Warmmiete (Kaltmiete + NK) €  1060

Preis-Barometer: -12% günstiger als ähnliche Immobilien in gleicher Lage

-12%

premium_badge
Dies ist ein Flatbee Plus+ Inserat
premium_badge

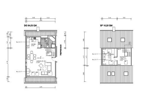
**Mönsheim - Exklusive 2-Zimmer-Maisonette-DG-Wohnung - Kernsaniert**


Beschreibung

Diese sehr großzügige und gemütliche 2-Zimmer-Maisonette-Dachgeschoss-Wohnung (ohne Balkon), bestehend aus Wohn- und Schlafzimmer, offener Küche (mit Einbauküche) und Tageslicht-Bad mit Badewanne und Dusche, wurde 2023 kernsaniert und befindet sich in der Mönsheimer Dorfmitte.

Die Wohnung im 2.OG (DG) ist ausgestattet mit Fliesen- und Vinylböden sowie Kunstofffenstern mit Doppelisolierverglasung. Sämtliche Decken und Wände sind mit Spritzputz versehen und weiß gestrichen.

2020 wurden die Gas-Zentralheizung mit zentraler Warmwasserbereitung zusammen mit dem Dach erneuert. Der Vollwärmeschutz wurde ebenfalls 2020 neu angebracht und sorgt für weitere Energieeinsparungen.

Die sichtbaren Holzbalken geben der Wohnung ein besonderes Flair.

Eine attraktive Wohnung für alle, die es lieben zentral und gemütlich zu wohnen.

Eine Besichtigung lohnt sich. Rufen Sie uns an.
Ausstattung
*Energieausweis ist in Bearbeitung
*Gas-Zentralheizung
*Kunstoff-Fenster mit Doppel-Isolierverglasung
*Wohnung ist gefliest und mit Vinylböden ausgestattet
*Kabelfernsehanschluss
*Tageslichtbad mit Badewanne und Dusche
*Wasserzähler in der Wohnung vorhanden
*Sämtliche Wände und Decken mit Rauhputz und weiß gestrichen
*KEIN BALKON
*Einbauküche mit Cerankochfeld, Backofen, Spülmaschine und Kühlschrank mit Gefrierkombination
*Türsprechanlage
*moderne Ausstattung
*Gemeinschaftsmüllbehälter
*Fahrradabstellraum
*Kellerraum
Lagebeschreibung
Die Enzkreis-Gemeinde Mönsheim liegt im gemütlichen Grenzbachtal und dem malerischen Heckengäu.

Mönsheim ist jeweils ca. 15 Kilometer von Pforzheim, Mühlacker und Leonberg entfernt, gehört zur Region Nordschwarzwald und grenzt an den Ballungsraum Stuttgart. Fachwerkhäuser des alten Dorfkerns prägen das Bild des historischen Zentrums.

Die Region ist eines der beliebtesten Naherholungsgebiete des Ballungsraumes Stuttgart.

Die Infrastruktur in dieser Wohngegend ist sehr gut. Die nahegelegene Bushaltestelle, Kindergarten, verschiedene Einkaufsmöglichkeiten, Arzt, Apotheke sowie die Grundschule sind fußläufig erreichbar.
Weiterführende Schulen werden in Heimsheim und Rutesheim angeboten.

Es besteht eine gute Verkehrsanbindung zu öffentlichen Nahverkehrsmitteln.
Die A8 Autobahnanschlussstellen Pforzheim-Süd und Heimsheim sind in ca. 5-10 min. erreichbar.
Sonstiges
Bitte geben Sie bei Ihrer Anfrage Ihre vollständigen Kontaktdaten an. Diese werden selbstverständlich vertraulich und diskret behandelt.

Alle Angaben beruhen auf den uns überlieferten Daten. Irrtümer vorbehalten.

**Sie suchen einen verlässlichen Partner für den Verkauf, die Vermietung oder die Betreuung Ihrer Immobilie ?

Eine 5-jährige Fachausbildung, Qualifikationen, Qualität und über 25 jährige Berufserfahrung inklusive Referenzen biete ich Ihnen an**

Ich verkaufe, vermiete und verwalte gerne auch Ihre Immobilie.

PROVISIONSFREI