Privat & provisionsfrei: Wohnungen aus Portalen, Kleinanzeigen & Social Media kombiniert


Das inserieren direkt auf Flatbee ist immer 100% kostenlos

Wohnung - Karte anzeigen 71297 Mönsheim Deutschland - 75 m2  

Kaltmiete € 980

| vor 2 Stunden auf Aktivität geprüft

Warmmiete (Kaltmiete + NK) €  1275

Preis-Barometer: +1% teurer als ähnliche Immobilien in gleicher Lage

+1%

premium_badge
Dies ist ein Flatbee Plus+ Inserat
premium_badge

**Mitteltalstr. - Mönsheim**Exklusive 3-Zi.-Wohnung mit Aufzug im Mitteltal am Grenzbach**


Beschreibung

In schöner ruhiger Lage in Mönsheim am Grenzbach wurden 2021 fünf Wohngebäude in massiver Niedrigenergiebauweise mit insgesamt 30 Mietwohnungen erbaut.

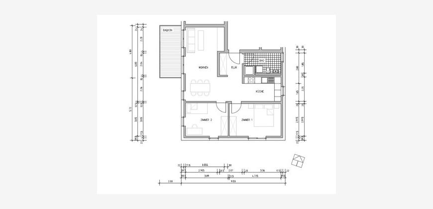
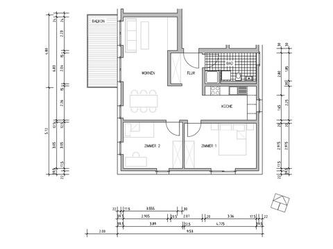
Diese gemütliche 3-Zimmer-Wohnung mit einem großzügigen Balkon ist modern, hochwertig und wohnlich konzipert worden.

Eine hochwertige Ausstattung der Wohnung mit einer Miele-Einbauküche, Pellet-Heizung, Fußbodenheizung, Fliesenböden und der lichtdurchfluteten Architektur sorgt für ein entspanntes Wohnen.

Aufgrund des Personenaufzuges, des ebenerdigen Einganges und der barrierefreiheit in der Wohnung, bietet sich diese Einheit auch ideal für Senioren an.

Die Wohnung besteht aus einer großen offenen Wohnküche mit Essbereich, zwei Schlafzimmern und einem Tageslicht-Bad mit begehbarer Dusche.

Wahlweise steht dem Mieter eine Garagenbox oder ein freistehender KFZ-Stellplatz zur Verfügung.

Die dreifach-Isolierverglasten Fenster- und Balkontürelemente bieten dem Mieter ein angenehmes Wohnklima. Sämtliche Wände in der Wohnungen sind mit einem Putz-Spachtel-Anstrich versehen.

Die Wohnung ist mit einer hochmodernen Wohnungsstation zur Warmwasseraufbereitung und jeweils einem Wärmemengen- und Kaltwasserzähler ausgestattet.

Ein Keller, Gemeinschaftsräume sowie eine Fahrradabstellmöglichkeit stehen dem Mietern ebenfalls zur Verfügung.

Ein Hausmeisterservice kümmert sich um die Treppenhausreinigung, Schneeräumung und die Grünpflege der Gemeinschaftsflächen.

Gerne begrüßen wir auch Sie als neuen Mieter in diesem Anwesen.

Zögern Sie nicht und vereinbaren Sie mit uns einen Besichtigungstermin.
Ausstattung
*Personenaufzug
*Fußbodenheizung in allen Räumen
*Kunstoff-Fenster mit Dreifach-Isolierverglasung
*Wohnung ist vollständig gefliest
*Kabelfernsehanschluss (direkt zwischen Mieter und Versorger)
*Tageslichtbad mit begehbarer Dusche (Wohnung ist auch Seniorengeeignet)
*Wasserzähler in der Wohnung vorhanden
*Sämtliche Wände und Decken mit Putz-Spachtel-Anstrich
*großzügiger Balkon
*Wahlweise Garagenbox oder KFZ-Abstellplatz vorhanden
*Miele-Einbauküche mit Cerankochfeld, Backofen, Spülmaschine und Kühlschrank mit Gefrierkombination
*Türsprechanlage
*gehobene Ausstattung
*Gemeinschaftsmüllbehälter
*Fahrradabstellraum
*Kellerraum
*Hausmeisterservice mit Treppenhausreinigung, Schneeräumung und Grünpflege
*repräsentatives Anwesen
Lagebeschreibung
Die Enzkreis-Gemeinde Mönsheim liegt im gemütlichen Grenzbachtal und dem malerischen Heckengäu.

Mönsheim ist jeweils ca. 15 Kilometer von Pforzheim, Mühlacker und Leonberg entfernt, gehört zur Region Nordschwarzwald und grenzt an den Ballungsraum Stuttgart. Fachwerkhäuser des alten Dorfkerns prägen das Bild des historischen Zentrums.

Die Region ist eines der beliebtesten Naherholungsgebiete des Ballungsraumes Stuttgart.

Die Infrastruktur in dieser Wohngegend ist sehr gut. Die nahegelegene Bushaltestelle, Kindergarten, verschiedene Einkaufsmöglichkeiten, Arzt, Apotheke sowie die Grundschule sind fußläufig erreichbar.
Weiterführende Schulen werden in Heimsheim und Rutesheim angeboten.

Es besteht eine gute Verkehrsanbindung zu öffentlichen Nahverkehrsmitteln.
Die A8 Autobahnanschlussstellen Pforzheim-Süd und Heimsheim sind in ca. 5-10 min. erreichbar.
Sonstiges
Bitte geben Sie bei Ihrer Anfrage Ihre vollständigen Kontaktdaten an. Diese werden selbstverständlich vertraulich und diskret behandelt.

Alle Angaben beruhen auf den uns überlieferten Daten. Irrtümer vorbehalten.

**Sie suchen einen verlässlichen Partner für den Verkauf, die Vermietung oder die Betreuung Ihrer Immobilie ?

Eine 5-jährige Fachausbildung, Qualifikationen, Qualität und über 30 jährige Berufserfahrung inklusive Referenzen biete ich Ihnen an**

Ich verkaufe, vermiete und verwalte gerne auch Ihre Immobilie.

PROVISIONSFREI